LEM
Laboratorio Experimental de Madera
Año:
2020-2021 Area:
19m2
Vivienda mínima
Ubicación:
Helsinki, Finland Tipología:
Vivienda Cliente:
Wood Program
︎ Equipo de diseño: Alexander Garduño, Veronika Kudriashova,Chisato Segawa, Sichen Dong, Lucinda Eccles, Philip Antons, Esin Aydemir, Yiyang Li, Ata Bullent, Anastasia Luzina, Yu Sasaki, Xiangyu Shao, Constanza Manzochi, Djoke Heyligers and Alessandra Muller.
Profesores: Pekka Heikkinen, Laura Zubillaga, Philip Tidwell and Mauri Konttila
El proyecto «Kore» desarrollado junto a 13 estudiantes durante la pandemia como parte del Wood Program de la Universidad de Aalto, se centró en crear un espacio habitable compacto, sostenible y transportable.
2020-2021 Area:
19m2
Vivienda mínima
Kore
Ubicación:
Helsinki, Finland Tipología:
Vivienda Cliente:
Wood Program
︎ Equipo de diseño: Alexander Garduño, Veronika Kudriashova,Chisato Segawa, Sichen Dong, Lucinda Eccles, Philip Antons, Esin Aydemir, Yiyang Li, Ata Bullent, Anastasia Luzina, Yu Sasaki, Xiangyu Shao, Constanza Manzochi, Djoke Heyligers and Alessandra Muller.
Profesores: Pekka Heikkinen, Laura Zubillaga, Philip Tidwell and Mauri Konttila
El proyecto «Kore» desarrollado junto a 13 estudiantes durante la pandemia como parte del Wood Program de la Universidad de Aalto, se centró en crear un espacio habitable compacto, sostenible y transportable.
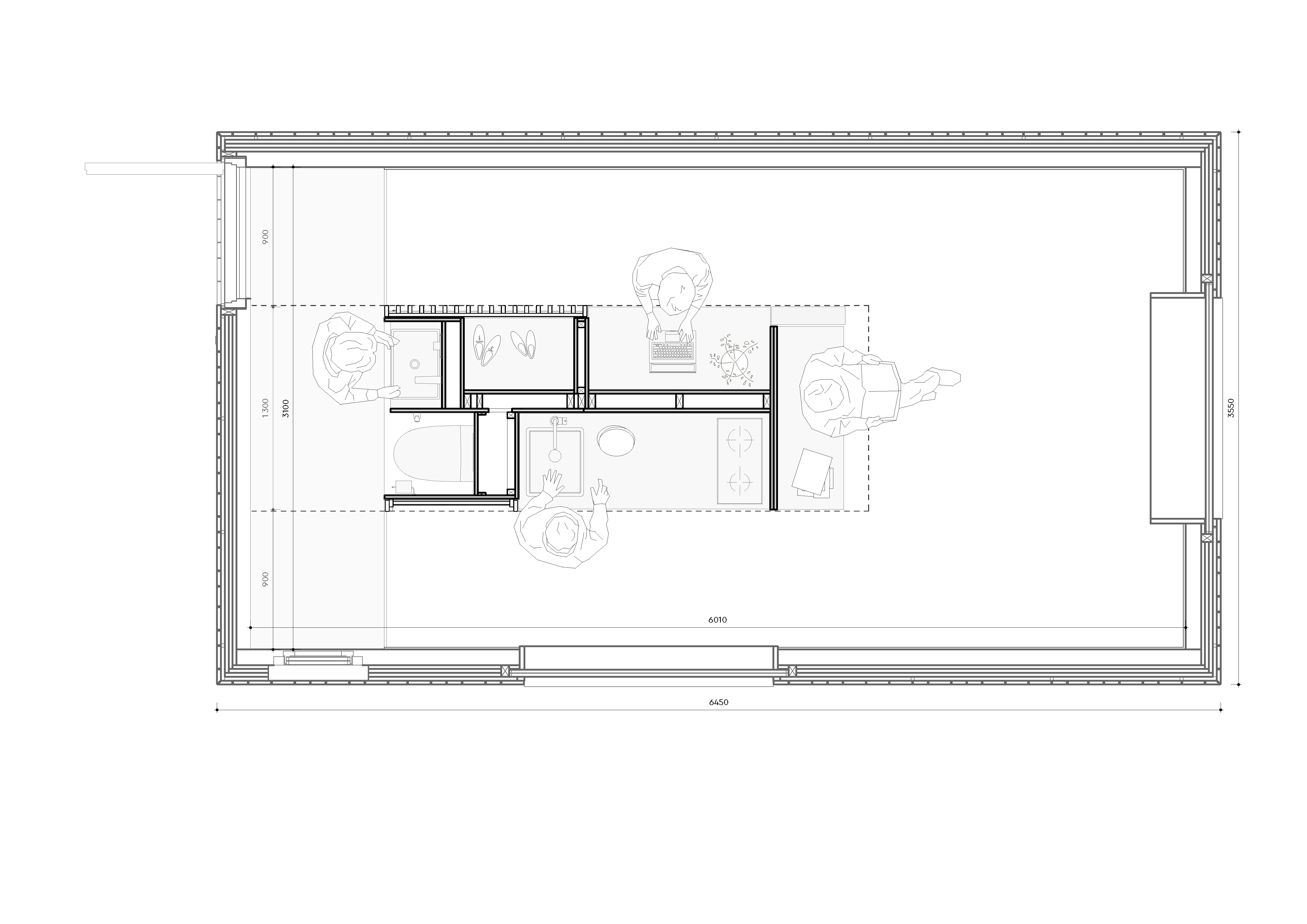
El proyecto se basa en un núcleo central y una estructura modular diseñada para ser transportable en un camión. La casa, de 3.5 x 6 metros, esta compuesta de dos componentes principales: una base con paredes que integran el núcleo y un techo desmontable. Mediante experimentos iterativos con secciones y modelos a escala de papel y madera, optamos por un techo en forma de pirámide con un tragaluz descentralizado ubicado sobre el área del mezzanine del núcleo.
Para el núcleo central, refinamos su distribución a través de prototipos a escala real, priorizando una configuración compacta y cómoda. Los tres lados abiertos del núcleo se distribuyeron en áreas funcionales específicas: un espacio de trabajo, una zona de estar junto a la ventana, una cocina con una ventana ampliada y un baño, cerrado por puertas correderas.












La construcción se realizó frente al taller de Wood Program, comenzando con un piso nivelado. En un día, ensamblamos las paredes de CLT, dando forma al interior. En el taller, prefabricamos los paneles de revestimiento y diseñamos una conexión especial en forma de pirámide para simplificar su instalación en las paredes en el sitio.
Dentro de la casa, la construcción del núcleo avanzó en paralelo al trabajo exterior. Se instalaron las paredes estructurales y la losa del piso, también prefabricada en el taller, que fue cuidadosamente colocada en su sitio.
Dentro de la casa, la construcción del núcleo avanzó en paralelo al trabajo exterior. Se instalaron las paredes estructurales y la losa del piso, también prefabricada en el taller, que fue cuidadosamente colocada en su sitio.
Los componentes del techo, hechos de LVL, fueron cortados con precisión utilizando CNC de 5 ejes. Ocho paneles fueron ensamblados junto con dos arcos para reforzar la integridad estructural. Con el techo instalado por una grúa, la casa quedó transportable como una sola unidad o en dos partes: base y techo.




















