LEM
Laboratorio Experimental de Madera
Años:
2019-2022 Area:
680m2
Vivienda
Ubicación:
Huixquilucan, Edo. Méx. Tipología:
Casa Cliente:
Familia Saenz Pardo
︎ Alexander Garduno
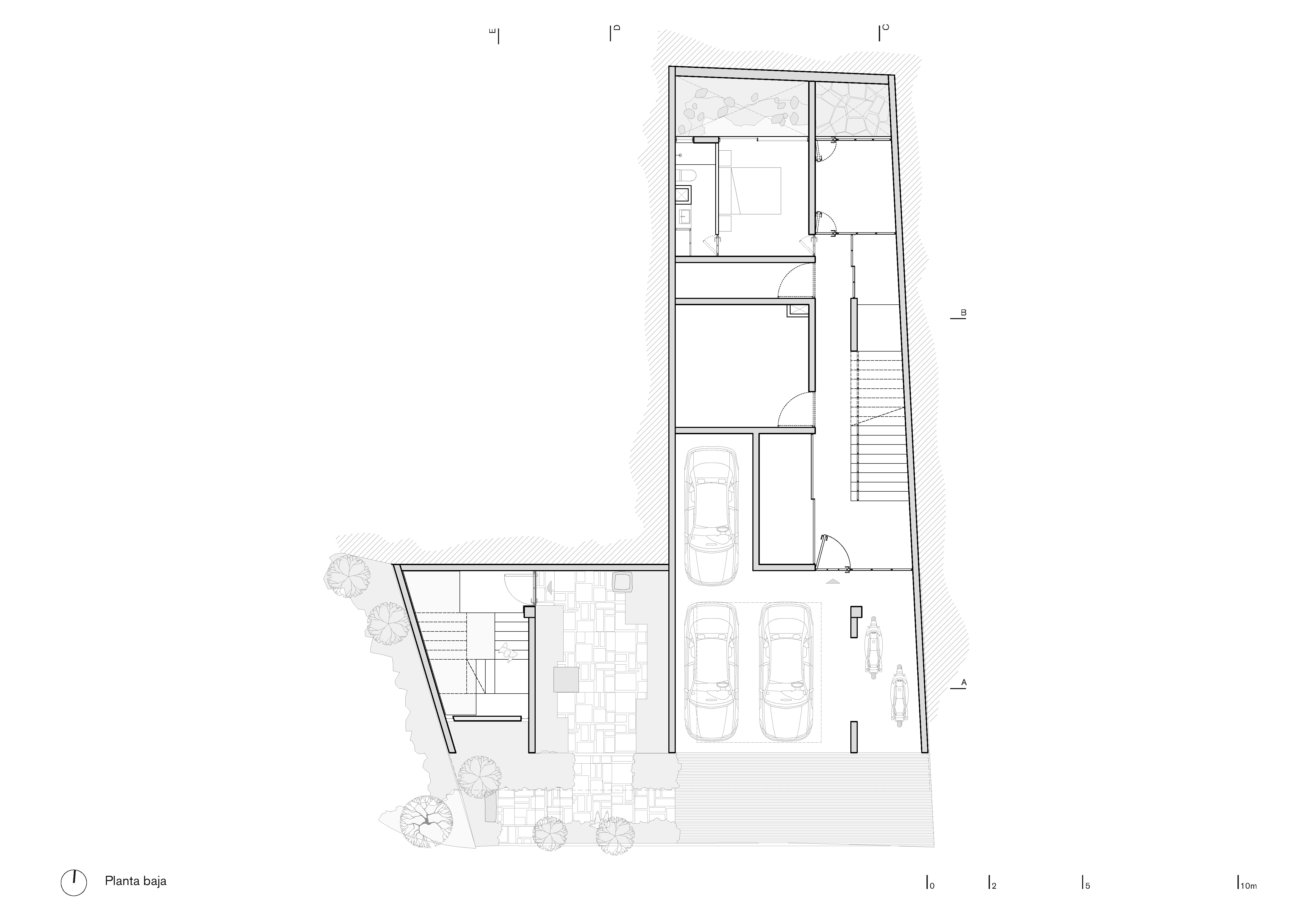
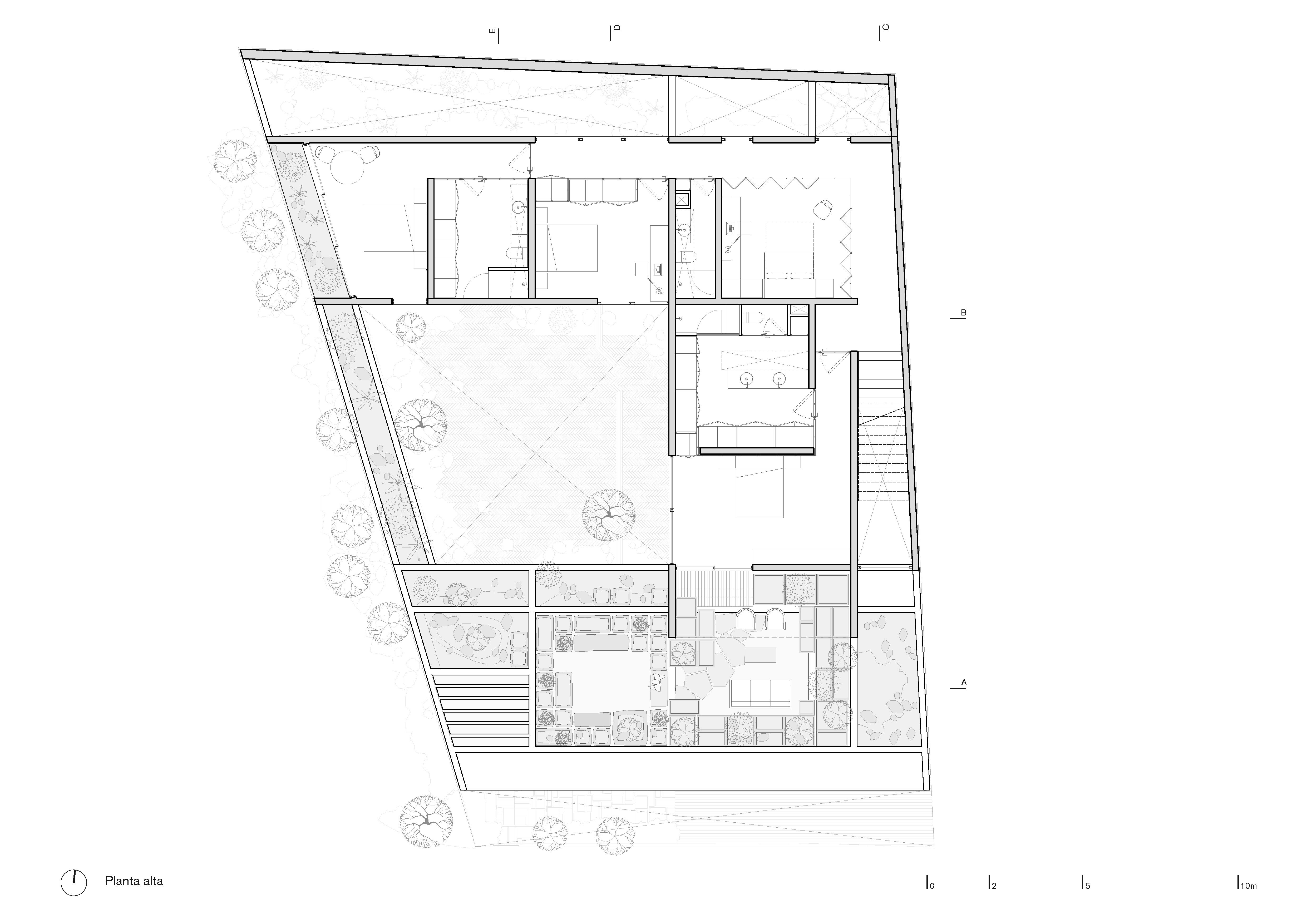
Residencia de tres niveles ubicada en un terreno accidentado, donde un monolito de concreto pigmentado emerge como protagonista. Su diseño esculpido crea un patio central que conecta interior y exterior mediante vistas cruzadas, integrando la flora y fauna del entorno con los habitantes.
2019-2022 Area:
680m2
Vivienda
Casa Saenz Pardo
Ubicación:
Huixquilucan, Edo. Méx. Tipología:
Casa Cliente:
Familia Saenz Pardo
︎ Alexander Garduno
Residencia de tres niveles ubicada en un terreno accidentado, donde un monolito de concreto pigmentado emerge como protagonista. Su diseño esculpido crea un patio central que conecta interior y exterior mediante vistas cruzadas, integrando la flora y fauna del entorno con los habitantes.

La distribución jerarquiza los espacios: planta baja para servicios, primer nivel para áreas públicas y planta alta para espacios privados. El patio central actúa como elemento articulador, diluyendo los límites entre el interior y el exterior. La cocina ejemplifica esta fusión, planteando la pregunta: ¿dónde termina el adentro y comienza el afuera? Además, el diseño modulable permite adaptar los espacios según las necesidades, gracias a la flexibilidad de canceles y cortinas, que conectan o separan áreas según el evento o preferencia del usuario.
El proyecto incorpora un modelo sustentable para la gestión del agua, respondiendo a las demandas del cliente y del sitio. Este sistema abastece estratégicamente las áreas verdes tanto dentro como alrededor de la vivienda, maximizando el uso del recurso.
En la planta alta, un jardín de vegetación xerófila crea un microclima que invita a la fauna silvestre a cohabitar. Este santuario conecta diseño, paisaje y cielo, aprovechando la lluvia como recurso esencial. El paisajismo trasciende lo contemplativo, reforzando la presencia de especies endémicas y creando una declaración de resistencia natural frente a la verticalidad urbana de los rascacielos.
En la planta alta, un jardín de vegetación xerófila crea un microclima que invita a la fauna silvestre a cohabitar. Este santuario conecta diseño, paisaje y cielo, aprovechando la lluvia como recurso esencial. El paisajismo trasciende lo contemplativo, reforzando la presencia de especies endémicas y creando una declaración de resistencia natural frente a la verticalidad urbana de los rascacielos.



























